Вхід на сайт

Ел. пошта:
Пароль:

Реєстрація на сайті

Призвіще: Область:
Ім'я: Населений пункт:
    По батькові: Номер телефону:
    Ел. пошта: Компанія:
      Пароль: Посада:
      Повторіть пароль: Рік початку роботи:
      Фото:
      З правилами розміщення об'єктів погоджуюсь

      Забули пароль?

      Вкажіть ел. пошту — ми надішлемо Вам новий пароль для входу
      Ел. пошта:

      Проблема на сайті

      Закрити
      Ваш e-mail:
      (необов'язково)
      Розкажіть нам, що сталось

      без комісії ул. Лесі Українки, '6 — Продається торгівельний майданчик

      (с. Тарасово, Луцкий район)

      55000 $

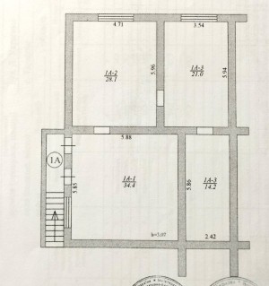
      Загальна площа: 98 кв.м

      Поверх: 1

      К-ть поверхів: 1

      Продаж комерційного приміщення в ЖК Західний Олімп!

      Торгово-офісне приміщення розташоване в ЖК «Західний Олімп», що по вул. Лесі Українки, 6 в с. Тарасове.

      Характеристики:
      • окремий вхід та доступ 24/7,
      • цокольний поверх,
      • висота стелі 3,07 м.,
      • санвузол,
      • кабінетне планування,
      • хороший ремонт,
      • площа - 98 кв.м.,
      • можливість розміщення фасадної вивіски,
      • парковка.

      Комунікації: е-потужність 6 кВт, електрокотел, водопостачання (лічильник), інтернет, вентиляція.

      Вдале розташування, новобудова, в цій локації вже працюють магазин євротоварів, салон, спортзал, кав'ярня!

      Вартість продажу 55 000 USD (без комісії для покупця)

      Менеджер даного об’єкту – Іванна Абрамович
      тел. моб. 38 050 34 133 82, 38 067 67 248 56

      Надіслати скаргу

      Закрити
      Поскаржитися на об'єкт «ул. Лесі Українки, '6 (с. Тарасово, Луцкий район)»
      Ваш коментар:(Необов'язково)
      Ваша скарга буде надіслана ріелтору, що розмістив об'єкт, а також адміністрації сайту АФНУ.
      Ваше ім'я:
      (Обов'язково)
      Ваш e-mail для відповіді:
      (Обов'язково)

      Коментарі