Вхід на сайт

Ел. пошта:
Пароль:

Реєстрація на сайті

Призвіще: Область:
Ім'я: Населений пункт:
    По батькові: Номер телефону:
    Ел. пошта: Компанія:
      Пароль: Посада:
      Повторіть пароль: Рік початку роботи:
      Фото:
      З правилами розміщення об'єктів погоджуюсь

      Забули пароль?

      Вкажіть ел. пошту — ми надішлемо Вам новий пароль для входу
      Ел. пошта:

      Проблема на сайті

      Закрити
      Ваш e-mail:
      (необов'язково)
      Розкажіть нам, що сталось

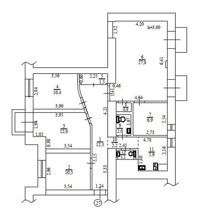
      без комісії ул. Леонтовича, 6а — Продається квартира

      (г. Киев, Шевченковский район)

      274000 $

      Загальна площа: 94 кв.м

      Жила площа: 72 кв.м

      Площа кухні: 6 кв.м

      Кімнат: 5

      Поверх: 3

      К-ть поверхів: 6

      Пропонується до продажу квартира- офіс в історичному та діловому центрі Києва, навпроти Володимирського Собору¸ вул. Леонтовича, 6а.
      • загальна площа 94 кв.м.
      • поверх 3/6; висота стелі 3 м;
      • офіс складається з 4 кабінетів, просторої переговорної, двох санвузлів та кухні;
      • стан – якісний офісний ремонт; житловий фонд;
      • двосторонній, вікна на Собор та у внутрішній дворик;
      • офіс повністю укомплектований меблями та побутовою технікою;
      • парадне у відмінному стані, без ліфта;
      • розвинена інфраструктура центру міста, кафе та ресторани, престижні школи, банки, магазини у пішій доступності;
      • ботанічний сад ім.Фоміна за 5 хвилин ходьби;
      • до ст.метрів Університет 500м, до ст.метрів Золоті Ворота 450м.
      • без комісії для покупця
      • з колегами працюємо по СПП

      Надіслати скаргу

      Закрити
      Поскаржитися на об'єкт «ул. Леонтовича, 6а (г. Киев, Шевченковский район)»
      Ваш коментар:(Необов'язково)
      Ваша скарга буде надіслана ріелтору, що розмістив об'єкт, а також адміністрації сайту АФНУ.
      Ваше ім'я:
      (Обов'язково)
      Ваш e-mail для відповіді:
      (Обов'язково)

      Коментарі