Вхід на сайт

Ел. пошта:
Пароль:

Реєстрація на сайті

Призвіще: Область:
Ім'я: Населений пункт:
    По батькові: Номер телефону:
    Ел. пошта: Компанія:
      Пароль: Посада:
      Повторіть пароль: Рік початку роботи:
      Фото:
      З правилами розміщення об'єктів погоджуюсь

      Забули пароль?

      Вкажіть ел. пошту — ми надішлемо Вам новий пароль для входу
      Ел. пошта:

      Проблема на сайті

      Закрити
      Ваш e-mail:
      (необов'язково)
      Розкажіть нам, що сталось

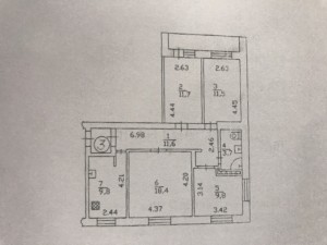
      ул. Навашина Академика, 11 — Продається квартира

      (г. Киев, Оболонский район)

      85000 $

      Загальна площа: 80 кв.м

      Жила площа: 60 кв.м

      Площа кухні: 10 кв.м

      Кімнат: 4

      Поверх: 1

      К-ть поверхів: 9

      Продаж 4-ної квартири на 1-му поверсі з вікнами які виходять з фасаду будинку, в тихому місці біля парку "Горка Кристера" в Оболонському р-ні м. Києва за адресою: вул. Навашина Академіка, 11. Квартира укомплектована меблями та технікою. Кімнати роздільні. Склопакети, дубовий паркет, плитка, спецпроект, на вікнах грати. Розвинена інфраструктура. Поруч історичний Поділ. Добрий під'їзд. Біля будинку достатньо місця для паркування. Ідеальне місце для проживання сім'ї або налагодження власної справи, наприклад хостел, або офіс невеликої компанії, нотаріуса, програмістів, тощо. Під квартирою підвал. Фактично готовий бізнес.

      Надіслати скаргу

      Закрити
      Поскаржитися на об'єкт «ул. Навашина Академика, 11 (г. Киев, Оболонский район)»
      Ваш коментар:(Необов'язково)
      Ваша скарга буде надіслана ріелтору, що розмістив об'єкт, а також адміністрації сайту АФНУ.
      Ваше ім'я:
      (Обов'язково)
      Ваш e-mail для відповіді:
      (Обов'язково)

      Вам также могут подойти

      ул. Чавдар Елизаветы, 13 (г. Киев, Дарницкий район) - Продається квартира, 75000 $ - АФНУ

      Оновлено: 16 листопада

      Розміщено: 9 листопада 2023

      Продається квартира

      2 кімн., площа 79/41/15, поверх 25/25

      г. Киев, ул. Чавдар Елизаветы, 13

      75000 $ без комісії

      Корчев Дмитро Юрійович

      Генеральний директор - засновник (2002р.) (АН "Брок-ріелті" Київ-Львів) , Голова Правління КМВ АФНУ (2012 - 2016 р.) (Ассоциация специалистов по недвижимости (риэлторов) Украины) , Член комисії з питань дотримання Статуту та Кодекса Етики (Ассоциация специалистов по недвижимости (риэлторов) Украины) , Член Арбітражної комісії КМВ АФНУ. (Ассоциация специалистов по недвижимости (риэлторов) Украины) , Модератор регіонального відділення КМВ АФНУ (Ассоциация специалистов по недвижимости (риэлторов) Украины) , Міжнародний член Національної Асоціаціїї Ріелторів США (Ассоциация специалистов по недвижимости (риэлторов) Украины)

      Продам 2 кімнатну квартиру, Дарницький, Осокорки, вул. Чавдар Єлізавети, буд.13, 25 пов/25 поверх. цегляного будинку, площею 79.2/41/15кв.м. з сучасним ремонтом з дорогих матералів (стиль "лофт"), можливо використання під офіс, спортивну…

      Детальніше

      Лісківська, 4 (г. Киев, Деснянский район) - Продається квартира, 95000 $ - АФНУ

      Оновлено: 16 листопада

      Розміщено: 8 травня 2024

      Продається квартира

      4 кімн., площа 94/54/10, поверх 9/16

      г. Киев, Лісківська, 4

      95000 $ без комісії

      Мельник Марина Анатоліївна

      В лавах асоціації з 2013 року (Ассоциация специалистов по недвижимости (риэлторов) Украины) , Брокер (АН "Брок-ріелті" Київ-Львів) , Міжнародний член Національної Асоціації Ріелторів США (Ассоциация специалистов по недвижимости (риэлторов) Украины)

      Продається світла, простора 4-кімнатна квартира по вул.Лісківська, 4 на Троєщині.
Розташована на 9 поверсі 16-ті поверхового керамзито-бетонного будинку. Серия Т-1.
Площа квартири S = 93, 2/ 53, 8 / 10
Квартира в гарному…

      Детальніше

      ул. Тешебаева, 1 (г. Киев, Шевченковский район) - Продається квартира, 74000 $ - АФНУ

      Оновлено: 15 листопада

      Розміщено: 5 листопада

      Продається квартира

      2 кімн., площа 72.5/33.6/7.6, поверх 7/9

      г. Киев, ул. Тешебаева, 1

      74000 $ без комісії

      Кулішенко Владислав Вікторович

      Заместитель генерального директора (АН "Альянс- Брок") , Член правления КГО АСНУ, Председатель комитета по информационным технологиям и сервисам (Ассоциация специалистов по недвижимости (риэлторов) Украины)

      Продам 2-кімнатну квартиру з новим євроремонтом, вул. Олександра Бринжали (Тешебаєва) 1, метро Нивки.

      7/9-поверхового панельного будинку. Загальна площа - 72.5 кв.м., житлова- 33.6 (18.9+14.7) кв.м, кухня 7.6 кв.м. Один з…

      Детальніше

      Коментарі