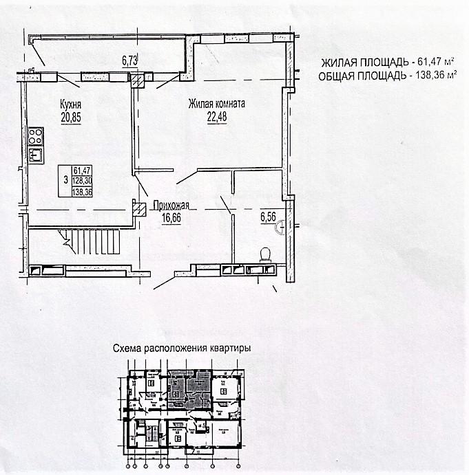
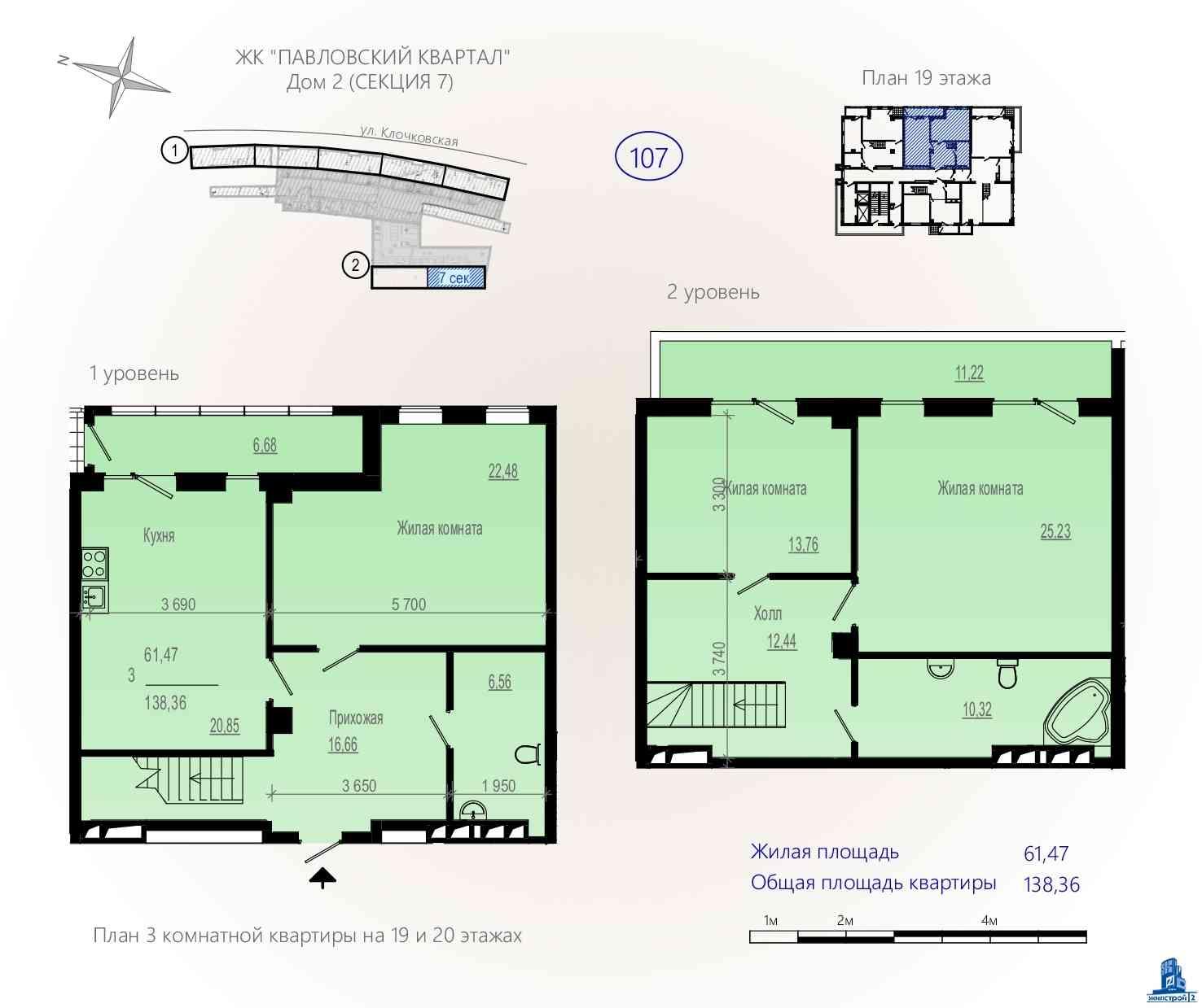
Продам 3-кімнатну квартиру з терасою у житловому комплексі бізнес-класу "Павлівський квартал", вул. Клочківська, 117 біля метро Наукова.
Код об'єкта SF-2-270-152
Житловий комплекс бізнес-класу розташований у районі, наближеному до центру. Біля будинку зупинки транспорту, через дорогу – супермаркет Восторг. Поруч метро, супермаркети Клас, Рост, АТБ, будівельний супермаркет Будмен, фітнес-клуб YOD, школи, дитсадки.
У під'їзді просторий хол, домофон, цілодобовий консьєрж-сервіс. Закритий двір, відеоспостереження, підземний дворівневий паркінг, наземне паркування, зони відпочинку, дитячі та спортивні майданчики.
Забудовник "Житлобуд-2"
Будинок 2. Секція 2 (7), стадія будівництва. Продаж по переуступці.