Вхід на сайт

Ел. пошта:
Пароль:

Реєстрація на сайті

Призвіще: Область:
Ім'я: Населений пункт:
    По батькові: Номер телефону:
    Ел. пошта: Компанія:
      Пароль: Посада:
      Повторіть пароль: Рік початку роботи:
      Фото:
      З правилами розміщення об'єктів погоджуюсь

      Забули пароль?

      Вкажіть ел. пошту — ми надішлемо Вам новий пароль для входу
      Ел. пошта:

      Проблема на сайті

      Закрити
      Ваш e-mail:
      (необов'язково)
      Розкажіть нам, що сталось

      без комісії ул. Полтавский Шлях, 186 — Продається квартира в новобудові

      (г. Харьков, Ленинский район)

      1306200 грн.

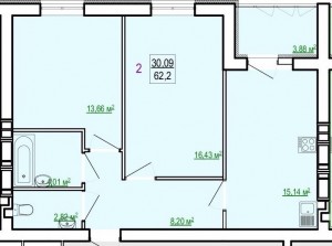
      Загальна площа: 62.2 кв.м

      Жила площа: 30 кв.м

      Площа кухні: 15 кв.м

      Кімнат: 2

      Поверх: 4

      К-ть поверхів: 9

      Без оплати агентських послуг за ціною забудовника продається 2-кімнатна квартира в новобудові ЖК «Казка», розташований по вул. Полтавський Шлях, 186, в 800 м., Ходьби від станції метро «Холодна Гора». Також в радіусі 2 км. від комплексу розташовані: школи, садки, супермаркети і парки.
      -
      Квартира розташована в будинку № 9 - здача будинку в 4 кварталі 2022 року.
      Площа квартири:
      Загальна. - 62.2 м²;
      Житлова - 30 м²;
      Кухня - 15 м².
      -
      КВАРТИРА ПОТРЕБУЄ КАПІТАЛЬНИЙ РЕМОНТ.
      КОМПЛЕКТАЦІЯ КВАРТИР:
      • встановлені перегородки як зазначено на плані;
      • металопластикові вікна (viknaland);
      • горизонтальна розводка опалення та радіатори опалення (є можливість поставити лічильник на тепло, регулятори на батареї і контролювати подачу тепла в квартиру індивідуально);
      • вхідні залізні двері;
      • лічильник на електрику;
      • підведені комунікації (холодна, гаряча вода);
      • каналізація;
      • заведено електрику;
      • зроблено зовнішнє утеплення стін (утеплювач пінополістирол 100 мм).
      -
      Буду радий Вас чути):
      Пн-Пт - 8: 00-20: 00.
      Сб-Нд - II: 00-20: 00
      Святкові дні - вихідний.

      Надіслати скаргу

      Закрити
      Поскаржитися на об'єкт «ул. Полтавский Шлях, 186 (г. Харьков, Ленинский район)»
      Ваш коментар:(Необов'язково)
      Ваша скарга буде надіслана ріелтору, що розмістив об'єкт, а також адміністрації сайту АФНУ.
      Ваше ім'я:
      (Обов'язково)
      Ваш e-mail для відповіді:
      (Обов'язково)

      Коментарі