Продаж складського комплексу вул. Окружна "Смичка" - м.Кривий Ріг - Центрально Міський район - вул.Окружна,3
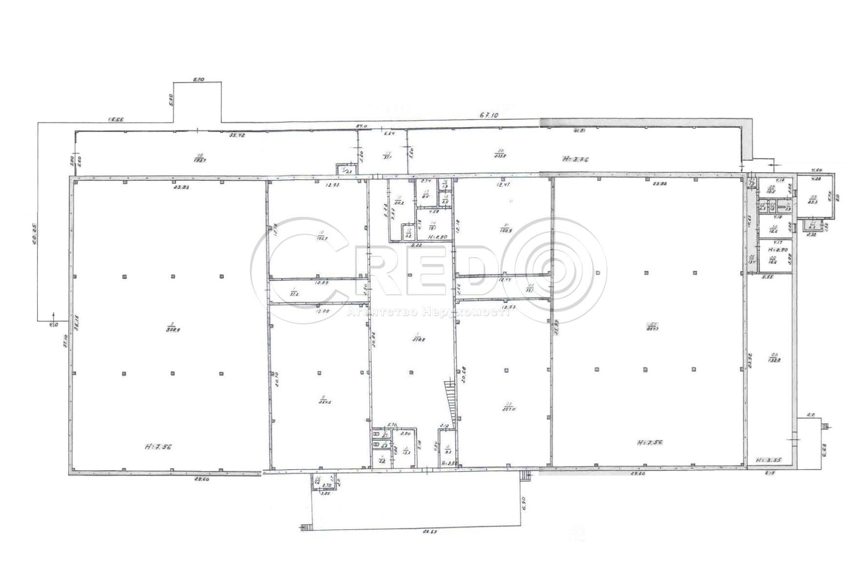
Технічні характеристики: - окремо разтошована капітальна будівля - знаходиться на території складів - склад в робочому стані - офісні приміщення, с/вузол, роздягальня для персоналу - котельня - гараж - рампа - парковка біля складу
Планування об’єкту: - загальна площа -3720 кв.м - гараж-123 кв.м - земельна ділянка-5886 кв.м
Логістична розв’язка: - приміщення розташоване в промисловій зоні - поруч зупинки громадського транспорту - виїзд на Кіровоградську трасу Продаж 80 у.о./кв.м
За будь-якими питаннями за цією або іншими пропозиціями звертайтесь за номером телефону 067 696 16 51. З повагою, команда Credo!