Вхід на сайт

Ел. пошта:
Пароль:

Реєстрація на сайті

Призвіще: Область:
Ім'я: Населений пункт:
    По батькові: Номер телефону:
    Ел. пошта: Компанія:
      Пароль: Посада:
      Повторіть пароль: Рік початку роботи:
      Фото:
      З правилами розміщення об'єктів погоджуюсь

      Забули пароль?

      Вкажіть ел. пошту — ми надішлемо Вам новий пароль для входу
      Ел. пошта:

      Проблема на сайті

      Закрити
      Ваш e-mail:
      (необов'язково)
      Розкажіть нам, що сталось

      без комісії вул.Ватутіна, 18-ж — Продається будинок

      (г. Буча)

      170000 $

      Загальна площа: 126 кв.м

      Площа ділянки: 2 сот

      Кімнат: 4

      К-ть поверхів: 2

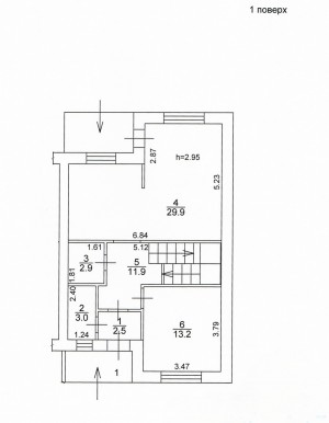
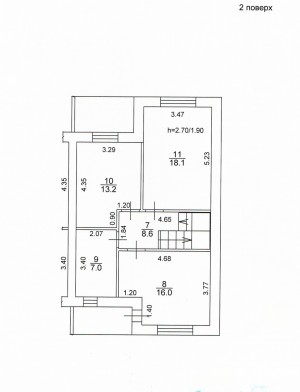
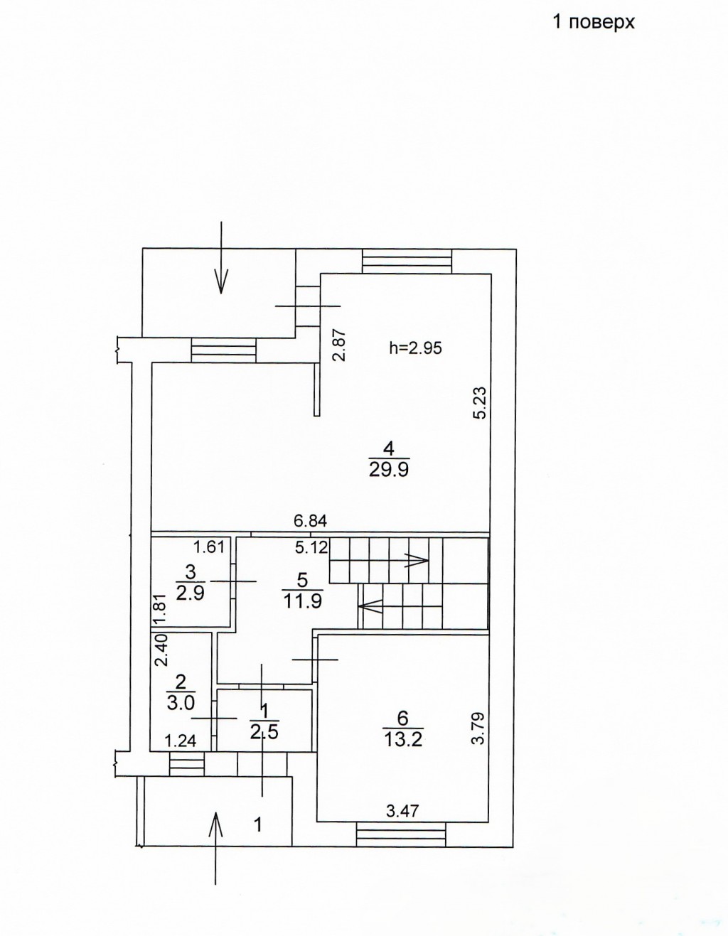
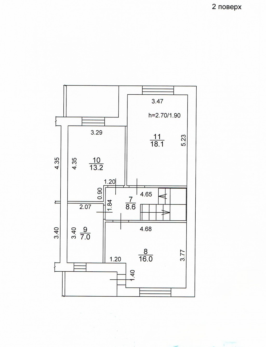
      ID:776 Продаж двоповерхового дуплексу в м.Буча, по вул.Ватутіна. Загальна площа будинку - 126,3м2, житлова - 60,5м2, кухня-вітальня - 29,9м2. В будинку є всі комунікації: газ, електрика (16кВт), вода - власна свердловина, каналізація - септик, встановлена система безпеки. Зроблено якісний ремонт, сучасні меблі, сходи та двері з натурального дерева. На першому поверсі: кухня-вітальня з теплою підлогою та виходом на терасу, кабінет, сан.вузол, госп.приміщення. На другому поверсі: три спальні та сан.вузол з теплою підлогою, який має ванну і душову кабіну. З однієї спальні є вихід на балкон. На другому поверсі встановлений рекуператор повітря. Ділянка загальною площею - 2,9 сотки. Доглянутий двір з декоративними рослинами та автополивом. Паркомісце на 3 авто під накриттям. Секційні ворота.

      Надіслати скаргу

      Закрити
      Поскаржитися на об'єкт «вул.Ватутіна, 18-ж (г. Буча)»
      Ваш коментар:(Необов'язково)
      Ваша скарга буде надіслана ріелтору, що розмістив об'єкт, а також адміністрації сайту АФНУ.
      Ваше ім'я:
      (Обов'язково)
      Ваш e-mail для відповіді:
      (Обов'язково)

      Вам также могут подойти

      вул.Вокзальна, 17-а (г. Буча) - Продається будинок, 168000 $ - АФНУ

      Оновлено: 30 грудня 2025

      Розміщено: 14 травня 2025

      Продається будинок

      г. Буча, вул.Вокзальна, 17-а

      168000 $ без комісії

      Черкавська Діана Миколаївна

      ID:520 Продаж будинку 265,1м2 із земельною ділянкою 9 соток, в м.Буча, по вул.Вокзальній. Стіни - побудований з цегли, утеплений та обшитий сайдингом. Фундамент - високий, стрічковий бетонний, обкладений декоративним камінням.…

      Детальніше

      Коментарі