ул. Есенина — Продається торгівельний майданчик
(г. Кривой Рог, Дзержинский район)
125000 $
Загальна площа: 130 кв.м
Поверх: 1
К-ть поверхів: 3
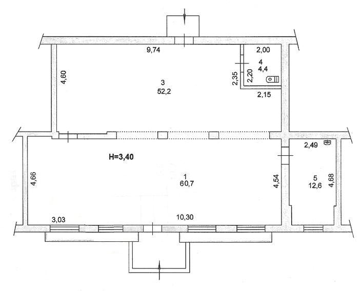
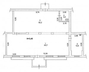
Продаж магазину на "96 квартал" - вул.Д.Дудаева, 4 - Металургійний район Про об’єкт: - перший поверх 3-х поверхового будинку - з окремим входом - магазин в гарному стані - парковка Планування об’єкту: - загальна площа - 130 кв.м - торгівельний зал - 113 кв.м - Н = 3,40 м - санвузол - підсобне приміщення. Комунікації: - центральне електропостачання 5 кВт; - центральне водопостачання, каналізація - центральне опалення - кондиціювання - пожарна та охоронна системи - додатковий вхід. Логістична розв’язка: - розташоване приміщення на "96 кварталі" - поряд безліч кафе та магазинів - напроти станція швидкісного трамваю - пішохідний та проїздний трафік. Продаж 125 000 у.е. За будь-якими питаннями за цією або схожими пропозиціями звертайтесь за номером телефону 067 696 16 51. З повагою, команда Credo!
Оновлено: 26 серпня
Розміщено: 16 липня
Вам также могут подойти
Оновлено: 3 жовтня
Розміщено: 6 серпня
площа 222, поверх 1/5
г. Кривой Рог, ул. Харитонова
115000 $
Літвинова Ірина Вікторівна
Продаж магазину вул.П.Калнишевського,5 - Центрально Міський район - поруч пл. Визволення Технічні характеристики: - перший поверх 5-ти поверхового житлового будинку - "червона лінія" - приміщення під ремонт - кутове -…
Коментарі