Вхід на сайт

Ел. пошта:
Пароль:

Реєстрація на сайті

Призвіще: Область:
Ім'я: Населений пункт:
    По батькові: Номер телефону:
    Ел. пошта: Компанія:
      Пароль: Посада:
      Повторіть пароль: Рік початку роботи:
      Фото:
      З правилами розміщення об'єктів погоджуюсь

      Забули пароль?

      Вкажіть ел. пошту — ми надішлемо Вам новий пароль для входу
      Ел. пошта:

      Проблема на сайті

      Закрити
      Ваш e-mail:
      (необов'язково)
      Розкажіть нам, що сталось

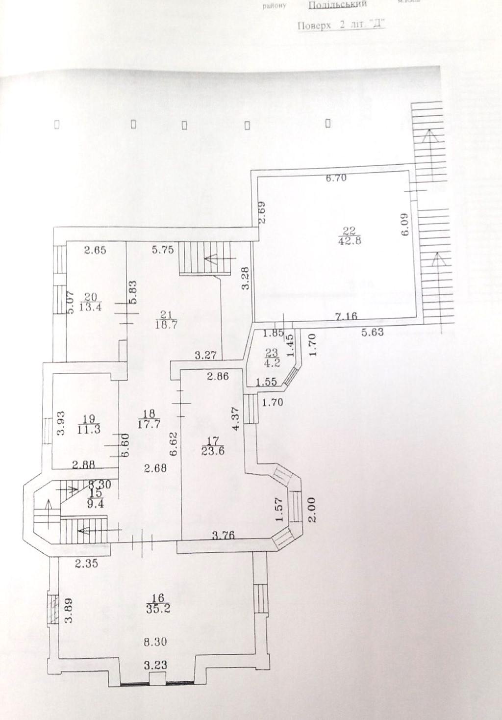
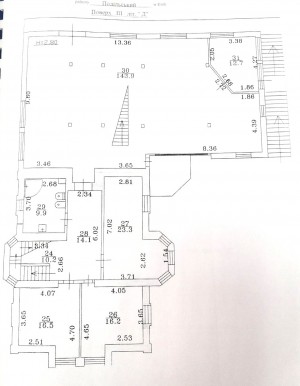
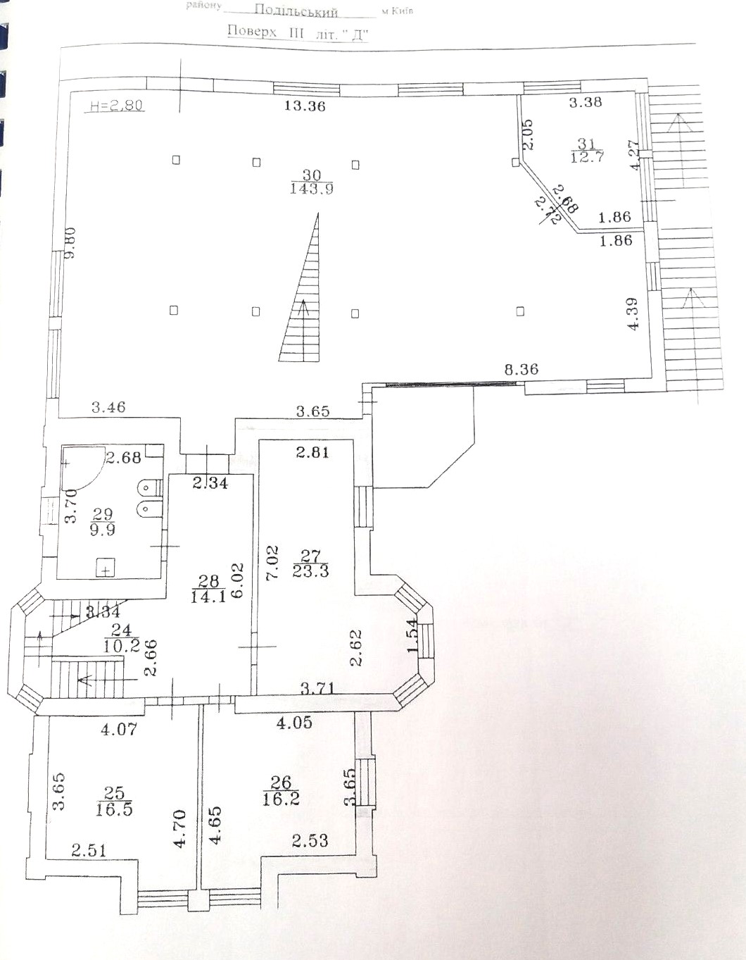
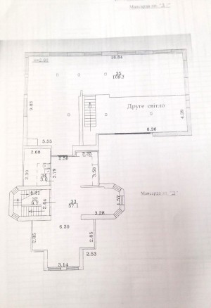
      без комісії ул. Нижнеюрковская, 37 — Продається офіс

      (г. Киев, Подольский район)

      690000 $

      Загальна площа: 746 кв.м

      Кімнат: 15

      Поверх: 1

      К-ть поверхів: 3

      Продаж окремого будинку під офіс, представництво, медичний центр. Поділ. вул. Нижньоюрківська, 37. 746 кв.м., земельна ділянка у власності 7,5 соток. 4 поверхи, гарний офісний ремонт, при необхідності залишаються всі офісні меблі та оргтехніка. 18 кабінетів з можливістю трансформації. Приміщення розраховано на роботу колективу до 60 людей і більше. Декілька с/в, кімната відпочинку, кухня-столова на 20-30 людей одночасно, кімната охорони. Кондиціонери з функцією обігріву в кожному кабінеті, розводка проводного інтернету, система відеоспостереження та сигналізація, система чіп-доступу, автоматичні ворота, парковка до 10 ти авто. Електрика до 70 кВт, усі міські комунікації, великий дизель-генератор резервного живлення на 50 кВт. До метро Тараса Шевченка 10 хвилин пішк. Будівля у ЖФ. Ціна: 690 000 $. Без %

      Надіслати скаргу

      Закрити
      Поскаржитися на об'єкт «ул. Нижнеюрковская, 37 (г. Киев, Подольский район)»
      Ваш коментар:(Необов'язково)
      Ваша скарга буде надіслана ріелтору, що розмістив об'єкт, а також адміністрації сайту АФНУ.
      Ваше ім'я:
      (Обов'язково)
      Ваш e-mail для відповіді:
      (Обов'язково)

      Коментарі