Вхід на сайт

Ел. пошта:
Пароль:

Реєстрація на сайті

Призвіще: Область:
Ім'я: Населений пункт:
    По батькові: Номер телефону:
    Ел. пошта: Компанія:
      Пароль: Посада:
      Повторіть пароль: Рік початку роботи:
      Фото:
      З правилами розміщення об'єктів погоджуюсь

      Забули пароль?

      Вкажіть ел. пошту — ми надішлемо Вам новий пароль для входу
      Ел. пошта:

      Проблема на сайті

      Закрити
      Ваш e-mail:
      (необов'язково)
      Розкажіть нам, що сталось

      без комісії пр. Науки, 1 — Здається офіс

      (г. Киев, Голосеевский район)

      15 $ за кв.м.

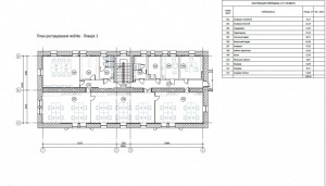
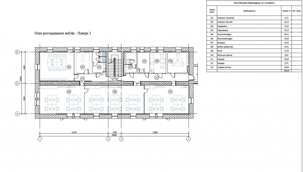
      Загальна площа: 310 кв.м

      Кімнат: 10

      Поверх: 3

      К-ть поверхів: 4

      ФАБРИКА -РОШЕН. Затишний офіс, повністю відремонтований, ніхто не знімав раніше приміщення. Дуже теплий, світлий, в гарному місці. Інраструктура: метро Деміївська 5 хвилин; Через дорогу-Центральний автовокзал, McDonald's, KFC; Зупинка міського транспорту-біля офісу; Нова Пошта- біля офісу; Паркуваня біля офісу безкоштовно, на парковці фабрики (платно); Зелена зона відпочінку з фонтанами, квітами та декоративними деревами. З кафе фабрики можливо замовлення обідів прямо в офіс; Світло є завжди! Бомбосховище- 3 хвилини. Швидкісні лінії інтернету, відеоспостереження, охрана.
      Ціна з ПДВ, включає оренду та обслуговування. Комунальні платежі по лічильниках.

      Надіслати скаргу

      Закрити
      Поскаржитися на об'єкт «пр. Науки, 1 (г. Киев, Голосеевский район)»
      Ваш коментар:(Необов'язково)
      Ваша скарга буде надіслана ріелтору, що розмістив об'єкт, а також адміністрації сайту АФНУ.
      Ваше ім'я:
      (Обов'язково)
      Ваш e-mail для відповіді:
      (Обов'язково)

      Коментарі