Вхід на сайт

Ел. пошта:
Пароль:

Реєстрація на сайті

Призвіще: Область:
Ім'я: Населений пункт:
    По батькові: Номер телефону:
    Ел. пошта: Компанія:
      Пароль: Посада:
      Повторіть пароль: Рік початку роботи:
      Фото:
      З правилами розміщення об'єктів погоджуюсь

      Забули пароль?

      Вкажіть ел. пошту — ми надішлемо Вам новий пароль для входу
      Ел. пошта:

      Проблема на сайті

      Закрити
      Ваш e-mail:
      (необов'язково)
      Розкажіть нам, що сталось

      без комісії ул. Петропавловская, 6 — Продається квартира

      (г. Киев, Подольский район)

      120000 $

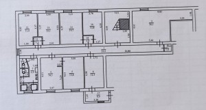
      Загальна площа: 162 кв.м

      Жила площа: 100 кв.м

      Площа кухні: 20 кв.м

      Кімнат: 5

      Поверх: 1

      К-ть поверхів: 9

      Продається велика квартира з окремим входом на першому фасадному поверсі в Києві, за адресою Петропавлівська 6.

      Ця квартира - працюючий орендний бізнес, кімнати подобово/погодинно/помісячно, під керуванням керуючої компанії.

      Житловий фонд, невеликі комунальні платежі.

      Квартира знаходиться у гарному стані, що дозволяє вам зайти та почати користуватися об'єктом без необхідності в додаткових ремонтних роботах, не витрачаючи час. З першого дня придбання об'єкт генерує прибуток.

      Місце розташування є ідеальним для тих, хто цінує зручний доступ до всіх необхідних сервісів, магазинів, послуг та розваг. Ви будете мати все, що потрібно в шаговій доступності.

      Зателефонуйте нам вже зараз, щоб дізнатися більше і домовитися про перегляд.
      Від представника власника, без комісійних.

      Надіслати скаргу

      Закрити
      Поскаржитися на об'єкт «ул. Петропавловская, 6 (г. Киев, Подольский район)»
      Ваш коментар:(Необов'язково)
      Ваша скарга буде надіслана ріелтору, що розмістив об'єкт, а також адміністрації сайту АФНУ.
      Ваше ім'я:
      (Обов'язково)
      Ваш e-mail для відповіді:
      (Обов'язково)

      Коментарі