Пропонуємо до продажу добротний будинок з великою ділянкою біля міської лікарні №5, вулиця Вільна. Географічне розташування середина міста Кривий Ріг. Однакова відстань як до південних так і до північних районів. Локація зацікавить тих хто шукає приватний будинок в районах Ювілейна, Мікрорайон, Юність, 173 квартал.
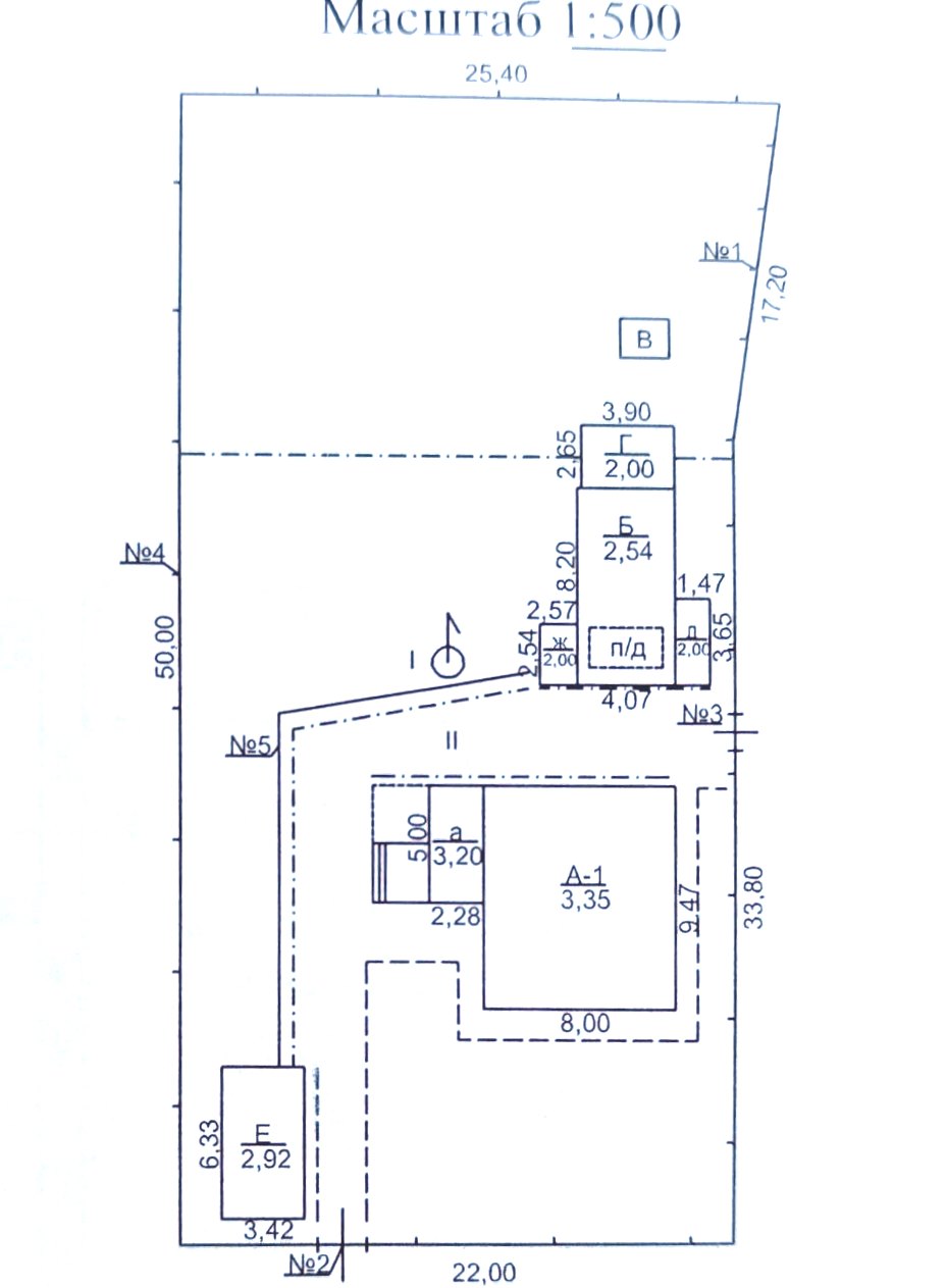
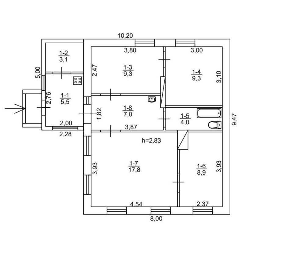
Про об'єкт: - міцний будинок заг.площею 65м.кв. - 4 кімнати житлової площі 45,3м.кв. - окремо обладнана кухня 8м х 4 м, 2 кімнати. - капітальний гараж з оглядовою ямою. - металевий гараж. - господарькі будівлі. - вольєр для собак. - глибокий підвал і окремо погріб. - 10 соток приватизованої землі.
Планування об'єкту: - будинок має 4 житлові кімнати: 17.8 + 9.3 + 9.3 + 8.9м.кв. - санвузол 4 м.кв. - передпокій та комора. - високі стелі 2.85 м. - кухня має дві кімнати та передпокій: робоча кухонна зона з технікою та кімната для відпочинку.
Комунікації та особливості об'єкту: - будинок та кухня обладнані водопроводом та мають центральну каналізацію. - опалення та теплу воду забезпечує двоконтурний котел "Immergs". - виконана якісна розводка опалення, замінені батареї та вікна. - підлога та міжкімнатні двері дерев'яні в хорошому стані. - збережені дві груби для можливого альтернативного опалення. - вихід на чердачне приміщення з самого будинку - дуже зручно для зберігання сезонних речей!
Прибудинкова територія та сад: - на приватизованій ділянці 10 соток розташовано 2 гаражі: капітальний із шлакоблоку та металевий. - до "літньої" кухні прибудовано господарчу будівлю. - є вуличний санвузол, дровник, дров'яна плита. - під кухнею розташований просторий підвал. - дуже охайний город, плодові дерева. - квітник з сезонними квітами. - Особливість домоволодіння у кутовому розташуванні! - є вхід з центральної вулиці, а також зручний заїзд з провулку.
Локація: - розташування будинку навпроти міської лікарні №5, амбулаторії, сімейної медицини, аптек. - локаційно поряд розташована школа №21, №43, №113, - дитячий садок - АТБ, гастроном «Птиця», автомайстерня, "Юність". тел. 067 982 17 19
Продаж будинку у казковій місцині Центрально-Міського району "Скелі МОДРу".
Цікава пропозиція - продаж будинку на березі Інгульця у природно-заповідній зоні "Скелі МОДРу". Геологічна пам’ятка природи загальнодержавного значення. Чудовий вид на…
Пропонуємо до продажу 4кімнатний будинок на Довгинцево, вул.Краєвидна (раніше Попова),район станції Новоблочна. Широка, асфальтована вулиця з гарними будинками та місцевою продуктовою крамничкою. Відносно не далеко розташована Міська лікарня № 10.…