Вхід на сайт

Ел. пошта:
Пароль:

Реєстрація на сайті

Призвіще: Область:
Ім'я: Населений пункт:
    По батькові: Номер телефону:
    Ел. пошта: Компанія:
      Пароль: Посада:
      Повторіть пароль: Рік початку роботи:
      Фото:
      З правилами розміщення об'єктів погоджуюсь

      Забули пароль?

      Вкажіть ел. пошту — ми надішлемо Вам новий пароль для входу
      Ел. пошта:

      Проблема на сайті

      Закрити
      Ваш e-mail:
      (необов'язково)
      Розкажіть нам, що сталось

      без комісії вул.Яблунська, 41-а — Продається будинок

      (пгт. Ворзель, г. Ирпень)

      70000 $

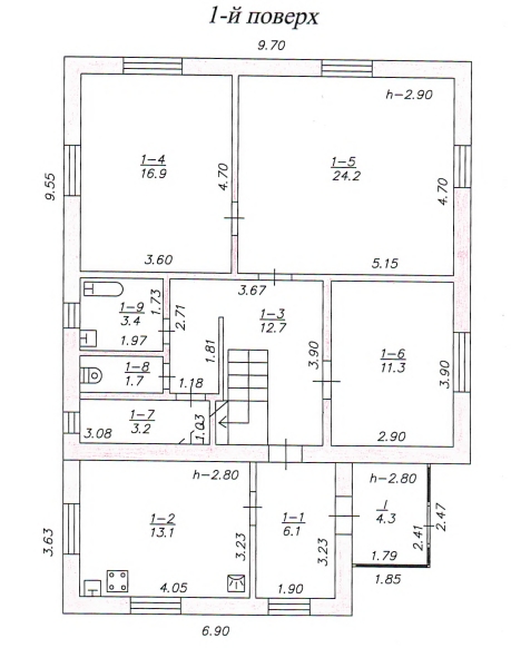
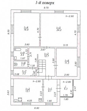
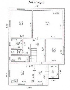
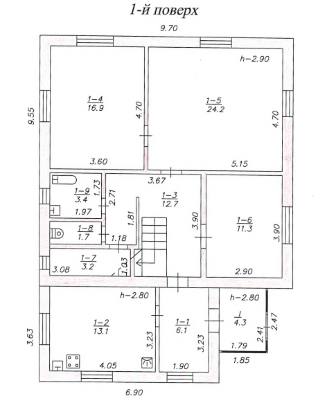
      Загальна площа: 159 кв.м

      Площа ділянки: 8 сот

      Кімнат: 5

      К-ть поверхів: 2

      ID:696 Продаж цегляного будинку з міцним фундаментом, селище Ворзель, вул.Яблунська (Крупської). Загальна площа будинку 159,8м2, житлова 77,2м2, товщина стін в 1,5 цегли + повітряний прошарок, перекриття - бетонне, дах - шифер. На першому поверсі знаходиться кухня, 3 кімнати (одна з них - прохідна), суміжний санвузол (замінені каналізаційні труби), підвал, технічне приміщення, два коридори, залізні сходи на другий поверх. На другому поверсі дві кімнати. Підключені комунікації: світло - 3 фази (16кВт), центральний водопровід, каналізація - септик на 5 кубів, газ є, але треба підключити, асфальтована дорога. На подвір’ї є гараж та підсобні приміщення, вуличний санвузол. Ділянка площею 8 соток. Поряд є зупинка транспорту, дитячий садок, школа, магазин, ліс, парк, 15хв до залізничної станції. Запрошуємо Вас на перегляд!

      Надіслати скаргу

      Закрити
      Поскаржитися на об'єкт «вул.Яблунська, 41-а (пгт. Ворзель, г. Ирпень)»
      Ваш коментар:(Необов'язково)
      Ваша скарга буде надіслана ріелтору, що розмістив об'єкт, а також адміністрації сайту АФНУ.
      Ваше ім'я:
      (Обов'язково)
      Ваш e-mail для відповіді:
      (Обов'язково)

      Вам также могут подойти

      Курортна, 112-а (пгт. Ворзель, г. Ирпень) - Продається будинок, 65000 $ - АФНУ

      Оновлено: 1 жовтня

      Розміщено: 18 грудня 2024

      Продається будинок

      пгт. Ворзель, г. Ирпень, Курортна, 112-а

      65000 $ без комісії

      Черкавська Діана Миколаївна

      ID:655 Продаж частини будинку в Ворзелі, яка розташована на 8 сотках землі. Загальна площа складає 120,5м2, з яких житлова 77,7м2 (5 кімнат), 3 окремі та дві прохідні, кухня-студія 25м2. Частково…

      Детальніше

      Кленова, 52-а, кв.1 (пгт. Ворзель, г. Ирпень) - Продається будинок, 79900 $ - АФНУ

      Оновлено: 23 липня

      Розміщено: 28 березня

      Продається будинок

      пгт. Ворзель, г. Ирпень, Кленова, 52-а, кв.1

      79900 $ без комісії

      Черкавська Діана Миколаївна

      ID:606 Продається велика частина будинку з окремою ділянкою 13,58 соток, по вул.Кленова. Виглядає як окремий будинок, спільна одна стіна (по документам квартира). Загальна площа 97,8м2, житлова 72,4м2. 3 кімнати, коридор,…

      Детальніше

      Коментарі